Combe Lane
Impressive single storey extension to enhance family home
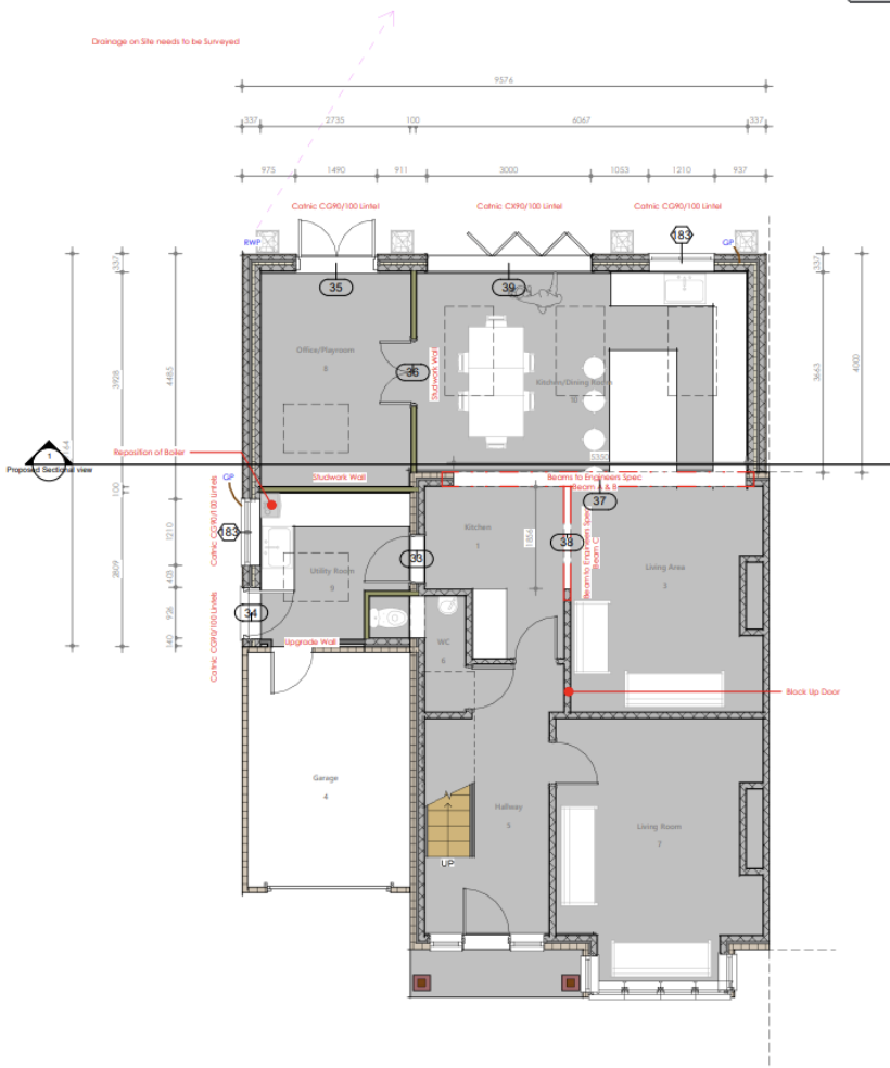
Design Brief
Extend family home to create spacious and inviting open plan living space with large kitchen, dining space and lounge. Utilising additional SQF to create separate playroom and functional utility room to support busy family life.
Works Completed:
- Structural alterations to support large opening through to extension
- Impressive full width, single storey extension with pitched roof and bespoke glazing
- Full renovation delivered to high specification
- Kitchen and utility room installation
Design Details
- Volted pitched roof to add height and create space between ceiling and floor, further enhanced with veluxes to flood natural light throughout
- White aluminium crittal style bifolding doors
- High end fittings and fixtures
What the client says
“Missiato removed all the stress out of the build. From instruction to completion, they project managed to perfection and minimized the disruption to our family life. The result was even better than we had hoped for.
We would like to thank the entire team at Missiato for all their hard work and will most definitely be recommending them to friends and family.”
Owner, Combe Lane
What did we love about the job?
The property allowed for a large rear extension that created an impressive, bright, and practical space the family could enjoy. We love the clients choice of finishes which only adds to the airy and calming tone of this home.